Prosjekt: Stemmelia 43, Øvsttun/Nesttun
Christer Kjørsvik, mobil 907 86 142, e-post christer@fitfactory.no
Jeg er i gang med renovering av barndomshjemmet, og har fått tillatelse til oppføring av tilbygg under bakken. Graving og avretting er nå unnagjort.
Jeg trenger i denne omgang hjelp med følgende murarbeider:
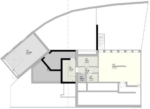
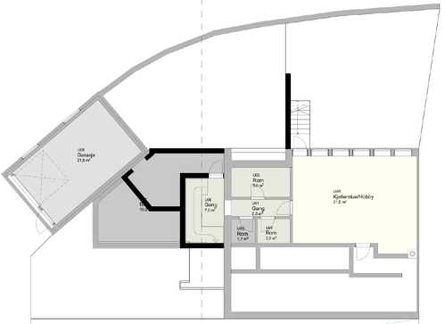
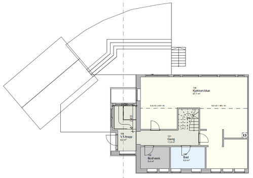
Huset er en vertikaldelt tomannsbolig, og på skissene er kun min del tegnet inn.
Jeg trenger i denne omgang hjelp med følgende murarbeider:
- Grunnmur og gulv for ny bod og trapperom mellom hus og garasje, samt betongtak over boden, og ringmur for tilbygg 1. etasje.
Huset er en vertikaldelt tomannsbolig, og på skissene er kun min del tegnet inn.
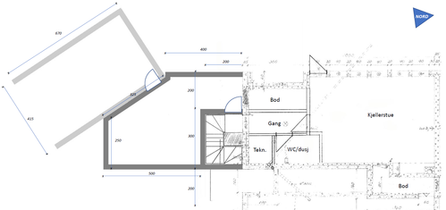
Planskissene lyver litt på størrelsen av den nye boden. Vi støtte på fjell som gjør at jeg har valgt å lage boden noe mindre: I planskissen er murene jeg trenger hjelp til merket med svart farge (se bort fra enkeltstående mur i svart ved kjellerstue).
Klikk her for å se video fra området mellom hus og garasje (filmet FØR utgraving og planering var ferdigstilt)
Klikk her for å se video fra området mellom hus og garasje (filmet FØR utgraving og planering var ferdigstilt)
